Description
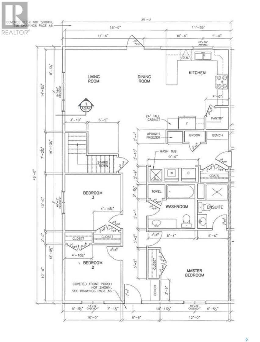
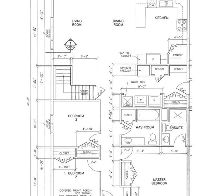
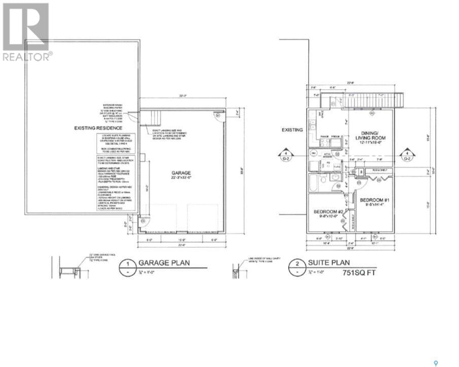
You will find this one of a kind income earning home in Yorkton’s newest neighbourhood… RIVERSIDE MEADOWS!! The main residence has over 2,600 sq. ft. of living space that will suit a growing family. The main floor has open kitchen/dining/living space with garden doors to the fenced back yard. The master bedroom with en-suite, 2 more bedrooms,4 piece bathroom and mud/laundry room complete the main floor. The basement has large windows and consists of another 2 spacious bedrooms, large rec room, exercise room, 3 storage spaces and 5 piece bathroom. The oversized attached garage is heated with access to the front and back yard. The backyard has a large east facing covered deck to get the morning sun and afternoon shade, garden space, 2 playhouses, large shed and many trees including three apple. The separate apartment/living space above the garage is completely separated from the house with private rear entrance. It has 2 bedrooms, 1 bathroom with tub, utility room and large living/dining/kitchen space. THE BONUS! The apartment earns $1250 per month to help pay down your mortgage faster! Tenant pays their own power(electric heat). There are 2 sets of appliances included. Move in to this one of a kind home and be able to pay half your mortgage without lifting a finger! (28499690)
Address
Open on Google Maps-
Address: 48 Whitewater Place
-
City/Location: Yorkton
-
State/county: Saskatchewan
-
Zip/Postal Code: S3N0X1
-
Area: Riverside Meadows
-
Country: Canada
Details
Updated on March 13, 2026 at 7:06 pm-
Property ID MLS-SK009957
-
Price $568,900
-
Property Size 2131
-
Land Area 8084
-
Bedrooms 7
-
Rooms 20
-
Bathrooms 4
-
Year Built 2010
-
Property Type House (detached), RESIDENTIAL
-
Property Status FOR SALE
-
House Style/Structure Single-Detached House, Bungalow
-
Basement Finished, Sump Pump / Sump Basin
-
Garage Type / Parking Spots Attached, Parking Spots: 5, Garage Door Remote/Opener, RV Access, Heated Garage
-
Ownership Type Freehold
-
Annual Property Taxes $5,163
Mortgage Calculator
-
Down Payment
-
Loan Amount
-
Monthly Mortgage Payment
-
Property Tax
-
Home Insurance
-
PMI
-
Monthly HOA Fees


















